vivienda

Americana

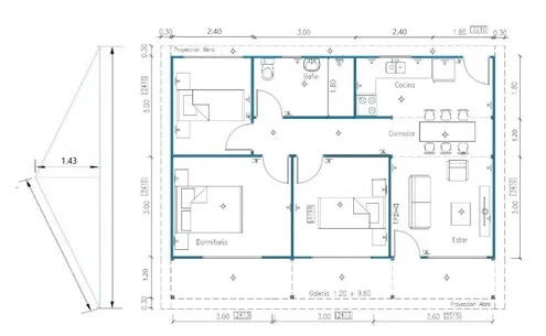
Vivienda Americana 58m2

Dormitorio 3

Baño 1

Metros 58m2

Descripción

La vivienda cuenta con paredes revestidas con placa cementicia de ambos lados interior y exterior, por dentro techo chapa trapezoidal, cielorraso de machimbre, aislación térmica, cañerías para agua, gas, y electricidad con cajas todas colocadas en paredes, (las conexiones a la red corren por cuenta del cliente) ventanas de aluminio blanco vidrio entero corrediza de 150x150, Ventiluz 060x36 en baño, ventana 120x050 en cocina. puertas interiores placa marco de chapa, y puerta de frente doble chapa inyectada. (platea de hormigón cerámicos griferías sanitarios alacena bajo mesada pintura y demás corren por cuenta del cliente)

Plano - 58m2

Contacto

casa viviendas muky
Logo Whatsaap

Contacto

Parque Industrial Tecnológico Quilmes

+54 911 3035-8444

info@viviendasmuky.com

Copyright © viviendasmuky. Todos los derechos reservados. Desarrollado por Cristian.Ponce